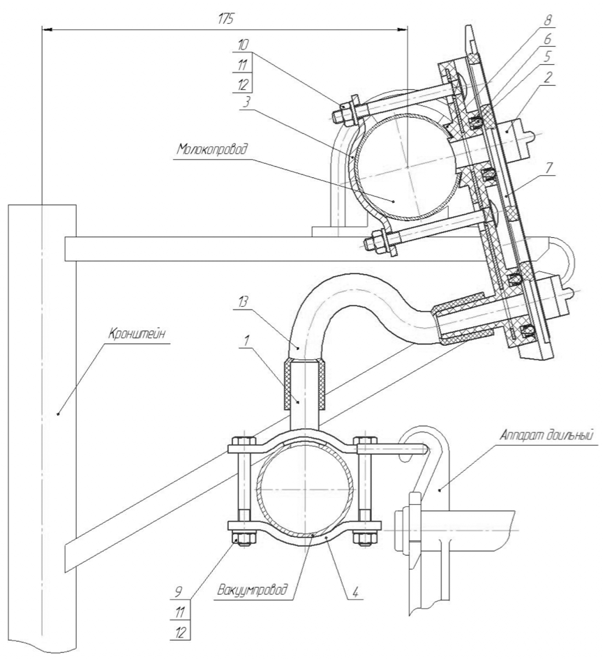
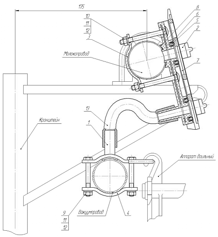
Для нержавеющего молокопровода с наружным диаметром труб 50мм
Подробнее
Наличие товара на складе и актуальность цен уточняйте у наших менеджеров
1 – Штуцер ШРИБ-108-221.000;
2 – Корпус ШРИБ-108-22.010;
3 – Прижим ШРИБ-108-22.402;
4 – Прижим ШРИБ-111-02.402;
5 – Амортизатор АДМ 01.013;
6 – Оболочка АДМ 01.014;
7 – Движок АДМ 51.007;
8 – Прокладка ДПР 042;
9 – Болт М6х50;
10 – Болт М6х65;
11 – Гайка М6;
12 – Шайба А6;
13 – Трубка ПВХ 11х4х350.
2 – Корпус ШРИБ-108-22.010;
3 – Прижим ШРИБ-108-22.402;
4 – Прижим ШРИБ-111-02.402;
5 – Амортизатор АДМ 01.013;
6 – Оболочка АДМ 01.014;
7 – Движок АДМ 51.007;
8 – Прокладка ДПР 042;
9 – Болт М6х50;
10 – Болт М6х65;
11 – Гайка М6;
12 – Шайба А6;
13 – Трубка ПВХ 11х4х350.
